Descrizione

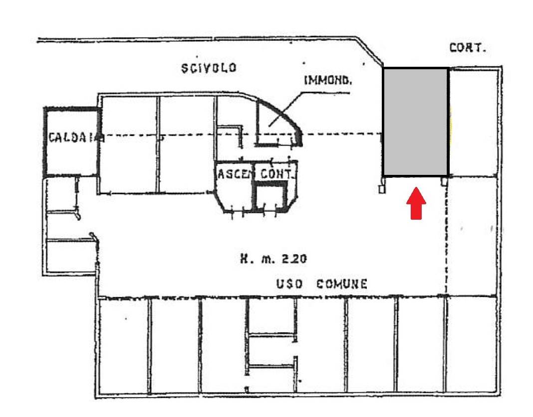
Nova Milanese : in palazzina proponiamo autorimessa singola di 19 mq
Libero subito


Caratteristiche principali


Mappa

via trento , Nova Milanese (MB)

Cookie preference